Если цена в объявлении изменится, мы сразу сообщим вам об этом на электронную почту.
Нажимая «Подписаться», вы соглашаетесь с правилами.
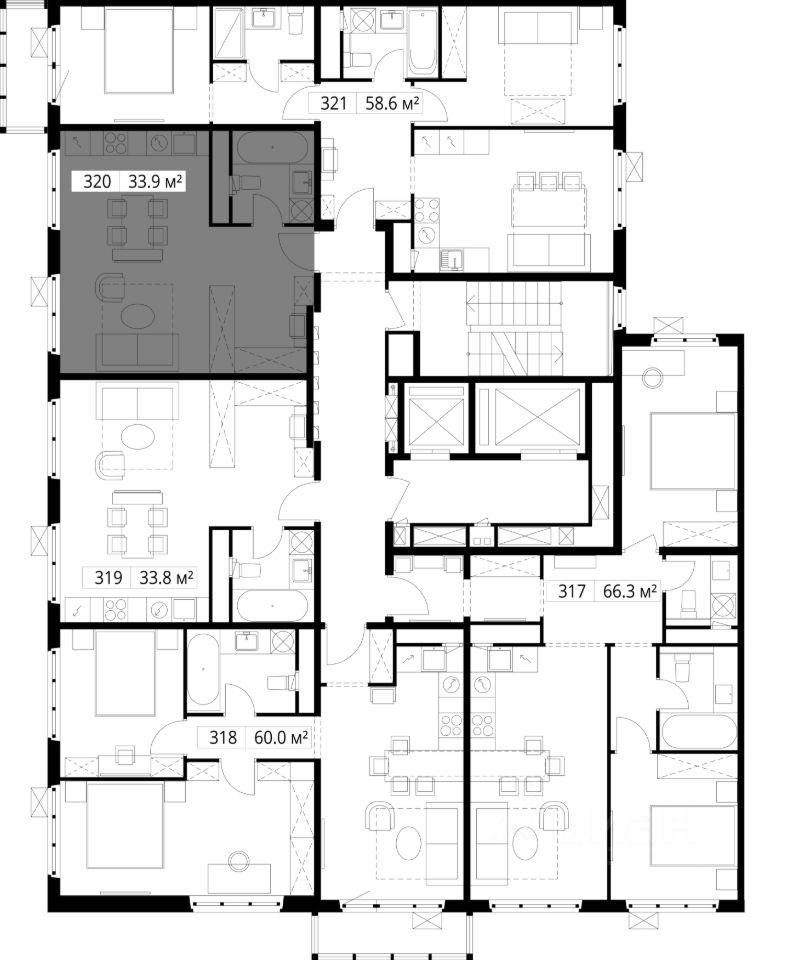
продам 1-к, Центральный кв-л, 76 913 984 ₽
22 янв 2025
Дата публикации объявления
Обн. вчера
Дата обновления объявления
Спецпредложение
Турбо x8
203 952 ₽/м²
Чистая продажа
Термин "Чистая продажа" означает, что в квартире никто не прописан или
есть куда выписаться и вывезти вещи. Это лучший вариант для покупателя.
Вероятность срыва сделки минимальна.
Прямая продажа от застройщика. Продаётся студия общей площадью 33.90 кв. м с предчистовой отделкой в ЖК ''У реки. Эко Видное 2.0'' на 14-м этаже корпуса Нестеров. Все корпуса введены в эксплуатацию. Выдача ключей - I кв. 2025г. Жилой комплекс ''У реки'' - уникальный проект комфорт-класса, в котором применяются стандарты строительства и сервиса MR Group, характерные для проектов девелопера бизнес и премиум-классов. 17-этажный корпус ''Нестеров'' расположится на живописном берегу реки Купелинка. Из его квартир откроются захватывающие виды на реку и лес на её противоположном берегу.
Прямая продажа от застройщика. Продаётся студия общей площадью 33.90 кв. м с предчистовой отделкой в ЖК ''У реки. Эко Видное 2.0'' на 14-м этаже корпуса Нестеров. Все корпуса введены в эксплуатацию. Выдача ключей - I кв. 2025г. Жилой комплекс ''У реки'' - уникальный проект комфорт-класса, в котором применяются стандарты строительства и сервиса MR Group, характерные для проектов девелопера бизнес и премиум-классов. 17-этажный корпус ''Нестеров'' расположится на живописном берегу реки Купелинка. Из его квартир откроются захватывающие виды на реку и лес на её противоположном берегу.
О проекте: - 5 корпусов переменной этажности, - 8 км от МКАД, 30 минут до метро ''Домодедовская'', в 2025 года запланировано открытие станции МЦД-5 (дорога по Павелецкого вокзала займёт 30 минут), - Безопасные дворы с детскими и спортивными площадками для разных возрастов, - Собственная набережная с променадом, местами для пикников и рыбалки, - Два детских сада и школа на территории, - Развитая инфраструктура района, - Отделка MR Base (white box)
Компания MR Group предлагает своим клиентам специальные условия приобретения квартир в рамках программ ипотечного кредитования от банков-партнеров.