Если цена в объявлении изменится, мы сразу сообщим вам об этом на электронную почту.
Нажимая «Подписаться», вы соглашаетесь с правилами.
продам 2-к, Побратимов, 226 700 000 ₽
19 мар 2025
Дата публикации объявления
Обн. 11 ноя
Дата обновления объявления
157 277 ₽/м²
Чистая продажа
Термин "Чистая продажа" означает, что в квартире никто не прописан или
есть куда выписаться и вывезти вещи. Это лучший вариант для покупателя.
Вероятность срыва сделки минимальна.
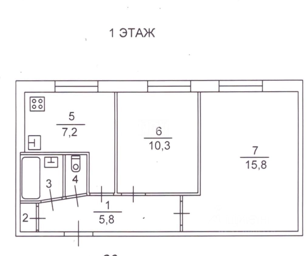
Лот 47066447. Для Вас удобства города в формате загородной жизни. В шаговой доступности от МЦД-3 Люберцы предлагаем 2 к.кв. с изолированными широкими комнатами (10,3м -15,8м), кухня 7,2м. Дом окружен деревьями, кругом зелено, для глаз приятно, птицы поют и ваш ребенок всегда на виду. Первый этаж удобно как для детей, так и для пожилых.
В квартире установлены пластиковые окна, в комнатах постелен линолеум и свежие обои. Кухня и ванная требуют ремонта. Мы оставили линолеум для коридора и кухни. Квартира теплая и светлая.
Рядом с домом дет.сад, школа, стадион Спартак, магазины, поликлиника, фитнес центр, Наташинский парк с прудами и знаменитая Российская таможенная академия.
Лот 47066447. Для Вас удобства города в формате загородной жизни. В шаговой доступности от МЦД-3 Люберцы предлагаем 2 к.кв. с изолированными широкими комнатами (10,3м -15,8м), кухня 7,2м. Дом окружен деревьями, кругом зелено, для глаз приятно, птицы поют и ваш ребенок всегда на виду. Первый этаж удобно как для детей, так и для пожилых.
В квартире установлены пластиковые окна, в комнатах постелен линолеум и свежие обои. Кухня и ванная требуют ремонта. Мы оставили линолеум для коридора и кухни. Квартира теплая и светлая.
Рядом с домом дет.сад, школа, стадион Спартак, магазины, поликлиника, фитнес центр, Наташинский парк с прудами и знаменитая Российская таможенная академия.
Транспортная доступность удобная, много маршруток до метро Косино, Лермонтовский проспект, Выхино или МЦД-3 от Зеленограда до Ипподрома.
Один взрослый собственник, наследство по закону с 2018г. Быстрый выход на сделку. Покажем оперативно, ключи на руках. Агент Кобзева Ольга Витаутасовна, НДВ-Супермаркет недвижимости