Термин "Чистая продажа" означает, что в квартире никто не прописан или
есть куда выписаться и вывезти вещи. Это лучший вариант для покупателя.
Вероятность срыва сделки минимальна.
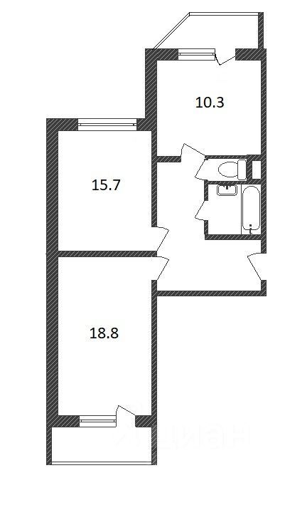
Продается 2-х комнатная квартира с качественным ремонтом, комнаты изолированные ( распашонка), две застекленные лоджии, санузел раздельный, тёплые полы: коридор, кухня, ванна. Район с развитой инфраструктурой: лес, парк для прогулок. Все необходимое для жизни находится в пешей доступности: поликлиники, супермаркеты, муниципальная школа, детские сады, рестораны и множество кафе. Чистый подъезд, по всему периметру дома, а так же в входной группе подъезда установлено видеонаблюдение. Двор оборудован детскими и спортивными площадками, а так же зонами отдыха. До метро МЦД D3 Люберцы - 2 км, до метро Некрасовка 2 км. Рядом с домом две остановки общественного транспорта. Школа и детский сад в пешей доступности (5 минут).
Продается 2-х комнатная квартира с качественным ремонтом, комнаты изолированные ( распашонка), две застекленные лоджии, санузел раздельный, тёплые полы: коридор, кухня, ванна. Район с развитой инфраструктурой: лес, парк для прогулок. Все необходимое для жизни находится в пешей доступности: поликлиники, супермаркеты, муниципальная школа, детские сады, рестораны и множество кафе. Чистый подъезд, по всему периметру дома, а так же в входной группе подъезда установлено видеонаблюдение. Двор оборудован детскими и спортивными площадками, а так же зонами отдыха. До метро МЦД D3 Люберцы - 2 км, до метро Некрасовка 2 км. Рядом с домом две остановки общественного транспорта. Школа и детский сад в пешей доступности (5 минут). Один взрослый собственник, более 5 лет в собственности, полная сумма в договоре