Если цена в объявлении изменится, мы сразу сообщим вам об этом на электронную почту.
Нажимая «Подписаться», вы соглашаетесь с правилами.
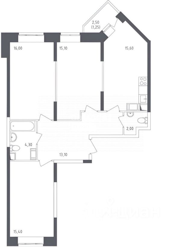
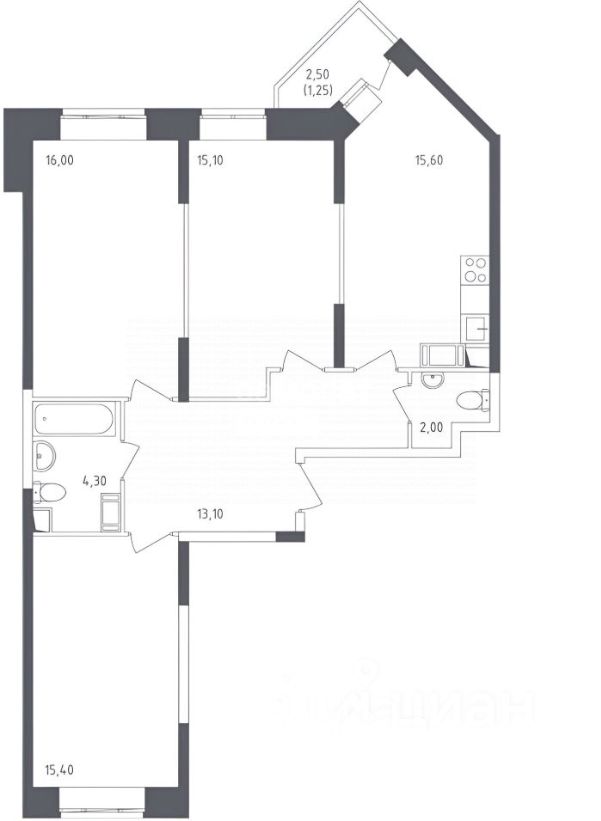
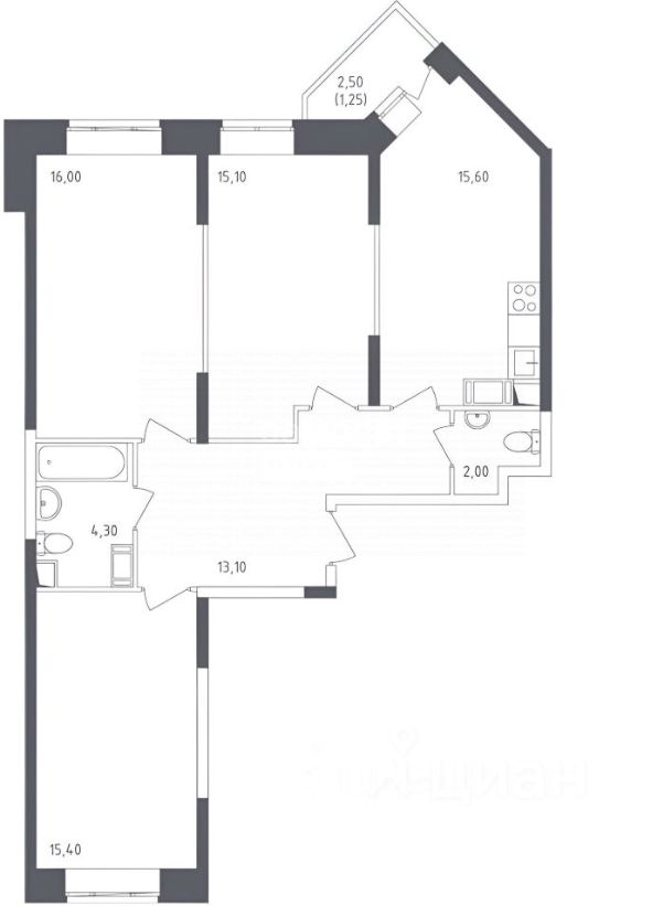
продам 3-к, Камова, 5 корп. 218 500 000 ₽
7 июля 2025
Дата публикации объявления
Обн. 8 окт
Дата обновления объявления
6
Количество просмотров (+ просмотры за сегодня)
223 971 ₽/м²
Чистая продажа
Термин "Чистая продажа" означает, что в квартире никто не прописан или
есть куда выписаться и вывезти вещи. Это лучший вариант для покупателя.
Вероятность срыва сделки минимальна.
Арт. 109947405 Готовы рассмотреть ЛУЧШИЙ ВАРИАНТ квартиры в этом районе?
Хотите получить ЛУЧШУЮ СТОИМОСТЬ квартиры в этом районе?
Ищите квартиру с ГАРАНТИЕЙ БЕЗОПАСНОСТИ?
Тогда эта КВАРТИРА ДЛЯ ВАС! ------------------------------------------------- -------------------------------------------------- ------------------ Отличная трехкомнатная квартира, расположенная по адресу: Люберцы, Зенино ЖК Самолет микрорайон, Камова 5к2. ------------------------------------------------- -------------------------------------------------- ------------------ ИНФРАСТРУКТУРА: - Транспортная доступность: м. Некрасовка в 7-минутах езды, всего 5 минут до съезда на СВХ и трассу М-12.
Арт. 109947405 Готовы рассмотреть ЛУЧШИЙ ВАРИАНТ квартиры в этом районе?
Хотите получить ЛУЧШУЮ СТОИМОСТЬ квартиры в этом районе?
Ищите квартиру с ГАРАНТИЕЙ БЕЗОПАСНОСТИ?
Тогда эта КВАРТИРА ДЛЯ ВАС! ------------------------------------------------- -------------------------------------------------- ------------------ Отличная трехкомнатная квартира, расположенная по адресу: Люберцы, Зенино ЖК Самолет микрорайон, Камова 5к2. ------------------------------------------------- -------------------------------------------------- ------------------ ИНФРАСТРУКТУРА: - Транспортная доступность: м. Некрасовка в 7-минутах езды, всего 5 минут до съезда на СВХ и трассу М-12. - Школы и дет сады: Инженерно-технологический лицей, дошкольное отделение 2 и 3, детский сад 16 Самолётик, Детский сад 15 Бригантина, Инженерно-технологический лицей и школа 28. - Сетевые магазины: В каждом дворе магазины продуктов, сервис бытовых услуг, салоны красоты и даже кофейни. - ТРЦ Один, Два с кинотеатрами, зонами отдыха у метро Некрасовка. - Зоны отдыха, парки и т. д. - К концу 2025 года запланировано обустройство территории вокруг озера ------------------------------------------------- -------------------------------------------------- ------------------ КВАРТИРА: - видовой этаж (ПОСЛЕДНИЙ) - функциональная планировка - изолированные комнаты - дизайнерский ремонт - мебель и техника в подарок ------------------------------------------------- -------------------------------------------------- ------------------ ЛЕГКО КУПИТЬ: ипотека торг сертификат материнский капитал наличные без комиссии при покупке _________________________________________________ ____________________________________ Гарантия юридической чистоты сделки от компании! Помогу получить РЕШЕНИЕ ПО ИПОТЕКЕ НА САМЫХ ВЫГОДНЫХ УСЛОВИЯХ.
Отвечу на все Ваши вопросы по чистоте сделке по телефону, предоставим документы для ознакомления по запросу!
ЗВОНИТЕ, записывайтесь на просмотр, такие варианты квартир уходят быстро.
НЕ ПРИНИМАЙТЕ РЕШЕНИЕ О ПОКУПКЕ, НЕ ПОСМОТРЕВ ЭТУ КВАРТИРУ!!!
Станьте собственником замечательной квартиры для себя или под сдачу в аренду!