Если цена в объявлении изменится, мы сразу сообщим вам об этом на электронную почту.
Нажимая «Подписаться», вы соглашаетесь с правилами.
продам 1-к, Гоголя, 166 150 000 ₽
7 авг 2025
Дата публикации объявления
Обн. 11 сен
Дата обновления объявления
4
Количество просмотров (+ просмотры за сегодня)
205 000 ₽/м²
Чистая продажа
Термин "Чистая продажа" означает, что в квартире никто не прописан или
есть куда выписаться и вывезти вещи. Это лучший вариант для покупателя.
Вероятность срыва сделки минимальна.
Код объекта: 1709745. Уникальное предложение для тех, кто ищет комфортное жильё в районе с развитой инфраструктурой! Продаётся однокомнатная квартира площадью 30 кв. м на улице Гоголя, 16 в городе Люберцы.
Код объекта: 1709745. Уникальное предложение для тех, кто ищет комфортное жильё в районе с развитой инфраструктурой! Продаётся однокомнатная квартира площадью 30 кв. м на улице Гоголя, 16 в городе Люберцы.
Квартира для комфортной жизни, все что на фото остается в квартире (техника и мебель почти новые): - встроенная кухня с вытяжкой, холодильник (выше 2-х м), газовая плита (электроподжиг) с электрической духовкой, готовые выводы для стиральной машины (забор и слив), установлен фильтр для питьевой воды с тремя степенями очистки, - две антресоли, - 2 шкафа (у каждого внутри выведена подсветка), - детская двухъярусная кровать с рабочим местом (входит монитор на 27) и встроенный шкаф справа, - диван раскладной, - глубокий встроенный шкаф-купе в коридоре.
Капитальный ремонт: - пол полностью заменён. Сделана сухая стяжка + утеплитель 50 мм. По всей квартире идеально ровный пол. Выложен немецкий ламинат. В ванной теплый пол. - сантехника. Все трубы заменены и утоплены в стенах. Полотенцесушитель водяной всегда горячий. Сделана шумоизоляция стояка. - электрика новая с разводкой по потолку и грамотным расставлением розеток и выключателей. - входная дверь новая с тремя контурами уплотнения (шумоизоляция). На стенах везде антивандальная декоративная штукатурка. - окна пластиковые с жалюзи. Со стороны улицы установлены решетки. - на кухне сделан герметичный зимний холодильник.
О доме: ухоженный чистый подъезд без запахов, очень зеленая территория, окна выходят не на сторону подъездов. Возле дома всегда есть свободные парковочные места. В шаговой доступности: детский сад через дорогу, школа 7 мин. пешком, детские центры, ТЦ Комфорт, недалеко Наташинский парк, м. Лухмановская (1300 м).
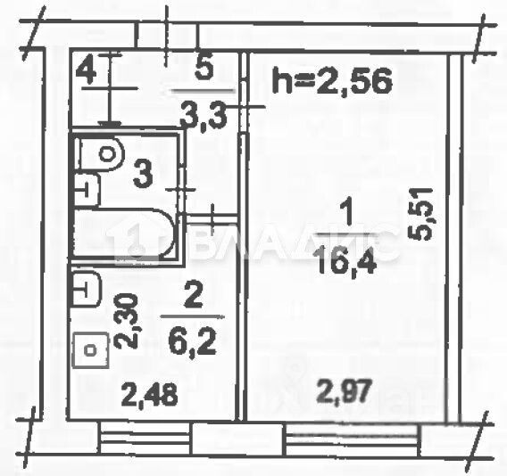
Квартира расположена на первом этаже пятиэтажного кирпичного дома 1971 года постройки. Высота потолков — 2.55 метра, что создаёт ощущение простора и свободы. В квартире выполнен евроремонт, благодаря чему можно сразу заселиться и наслаждаться уютом своего дома.
Квартира была куплена в 2021 году по договору купли-продажи. 2 взрослых собственника. Обременений нет.
Расположение квартиры позволит вам быстро добраться до основных транспортных магистралей и станций метро. Рядом находятся магазины, школы, детские сады и другие объекты инфраструктуры, что делает это предложение особенно привлекательным для семей с детьми.
Мы гарантируем безопасную сделку и юридическую поддержку нашим клиентам. Поможем одобрить ипотеку с сниженной ставкой. Не упустите свой шанс стать обладателем уютной квартиры в отличном районе! Звоните нам прямо сейчас, чтобы узнать больше и записаться на просмотр.