Продажа Light Industrial город Люберцы. Промышленный парк ''Завод'' Собственник
Адрес : Московская область, городской округ Люберцы, ул. Железнодорожная, дом 4.
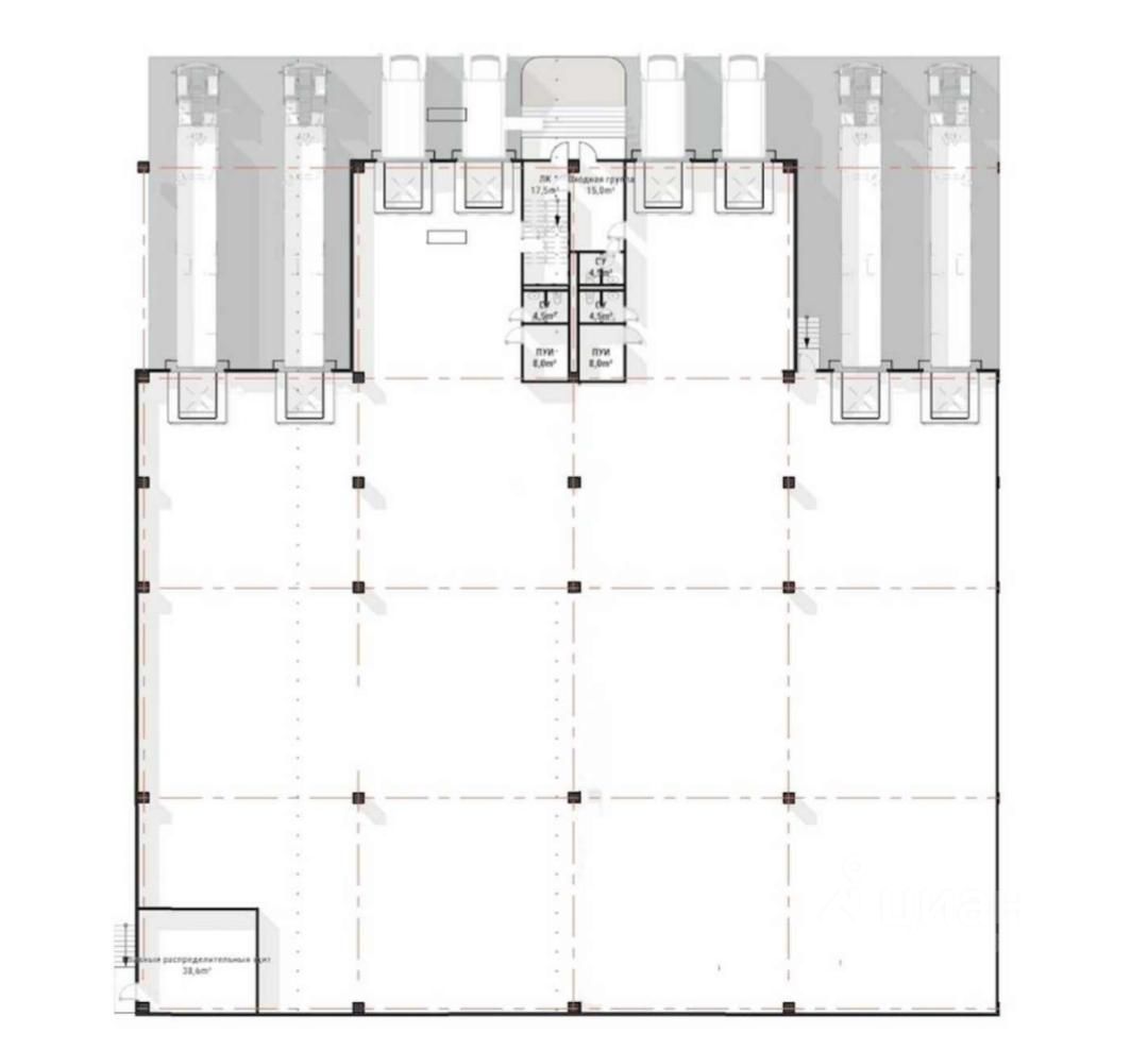
Технические характеристики помещения: Электроснабжение от 30 Вт/м2 Рабочая высота потолков в промышленном помещении - 10 м Шаг колонн 12х12 м Бетонный пол с антипылевым покрытием, нагрузка 6 тонн/кв.м Современная система пожаротушения и оповещения Офисное помещение передается с отделкой Готовность IV квартал 2025 года (идёт строительство, получено РНС)
Помещение общей площадью 2810 м2 в здании класса А состоит из универсального промышленно-складского блока с офисом, санузлом и душевой.
Продажа Light Industrial город Люберцы. Промышленный парк ''Завод'' Собственник
Адрес : Московская область, городской округ Люберцы, ул. Железнодорожная, дом 4.
Технические характеристики помещения: Электроснабжение от 30 Вт/м2 Рабочая высота потолков в промышленном помещении - 10 м Шаг колонн 12х12 м Бетонный пол с антипылевым покрытием, нагрузка 6 тонн/кв.м Современная система пожаротушения и оповещения Офисное помещение передается с отделкой Готовность IV квартал 2025 года (идёт строительство, получено РНС)
Помещение общей площадью 2810 м2 в здании класса А состоит из универсального промышленно-складского блока с офисом, санузлом и душевой. Парковочные места включены в стоимость, количество зависит от площади помещения. Грузовые ворота 4 шт для фур и 4 шт для малотоннажных авто на уровне 1,2 метра от земли.
Преимущества нашего парка: - Близость к Москве (всего 10 км от МКАД), рядом трассы федерального значения, - Высокая транспортная доступность (в 5 минутах пешком станция Московского Скоростного Диаметра D3 Панки. В 6 минутах пешком ж/д станция Люберцы-2), - Рядом грузовая ж/д станция, - Земля в собственности, - Абсолютно все инженерные коммуникации: электроэнергия, отопление, водоснабжение, канализация охраняемый периметр (на территории парка работает собственная УК), - Уникальные по формату помещения для многофункционального использования,
При единовременной полной оплате стоимость 1 м2 130 000 руб. (с учетом НДС) Количество лотов по указанной цене ограничено.
Дополнительная информация и презентация по запросу. Звоните обсудим задачи вашего бизнеса и подберем идеальное решение