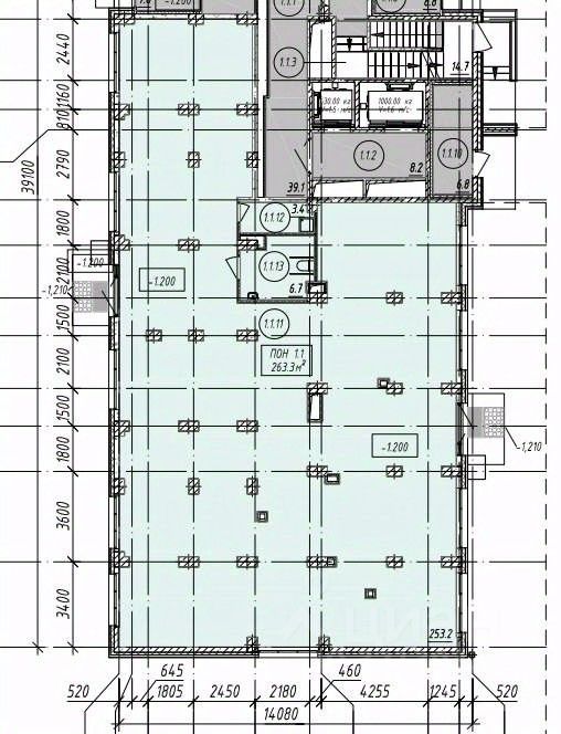
Угловое нежилое помещение 1.1, корпус 5.1, общей площадью 263,30 м2, первый этаж, 2 входа с улицы. Центральное местоположение, напротив муниципальный ДОО на 560 мест и Школа на 1500 мест. Помещение выходит на первую линию внутриквартального сквозного проезда. Есть стихийная парковка вдоль улицы. Высота потолков 4 м, выделенная мощность - 0,2кВт/ м2, состояние помещения - shell&core. заведены точки подключения к системам вентиляции, гвс/хвс, канализации. В помещении 12 больших витринных окон, предназначено под организацию поликлиники/мед. кабинета, под помещением - тех. этаж+кладовые. Дом вводится в эксплуатацию в 3 кв. 2024 г.
ЖК сдан, заселен.
Помещение под МЕДЦЕНТР от ЗАСТРОЙЩИКА!
Угловое нежилое помещение 1.1, корпус 5.1, общей площадью 263,30 м2, первый этаж, 2 входа с улицы. Центральное местоположение, напротив муниципальный ДОО на 560 мест и Школа на 1500 мест. Помещение выходит на первую линию внутриквартального сквозного проезда. Есть стихийная парковка вдоль улицы. Высота потолков 4 м, выделенная мощность - 0,2кВт/ м2, состояние помещения - shell&core. заведены точки подключения к системам вентиляции, гвс/хвс, канализации. В помещении 12 больших витринных окон, предназначено под организацию поликлиники/мед. кабинета, под помещением - тех. этаж+кладовые. Дом вводится в эксплуатацию в 3 кв. 2024 г.
ЖК сдан, заселен. Жилой комплекс расположен в 5 минутах езды от станций метро ''Некрасовка'', МЦД ст. Люберцы-1,2. Общее количеством квартир 4 700 шт. и населением более 8 000 человек.
Целевая продажа - под мед. услуги. Доступна беспроцентная рассрочка на 2 года, все подробности по телефону. Дополнительная скидка 2% на покупку 2-й и последующей недвижимости: для клиентов предоставляется специальная скидка до 2%. Скидку на вторую или последующую покупку можно получить при приобретении первого объекта недвижимости напрямую от застройщика. Действует при условии 100% оплаты или использовании ипотечных программ. Ипотека от Совкомбанка со сниженным платежом на период строительства: ГК ФСК и Совкомбанк запустили новую программу на приобретение готовых объектов, которая позволяет заемщику оплачивать сниженные ежемесячные платежи по ипотеке в течение льготного периода 6,9 или 12 месяцев. В течение этого времени заемщик оплачивает сниженный платеж эквивалентен платежу по ставке 6%. После льготного периода ипотечные средства перечисляются банком застройщику, а заемщику выдается кредит по ставке от 23,99%. Минимальный ПВ от 30,01% Акции проводятся до 31.08.2025. Подробности в офисах продаж.