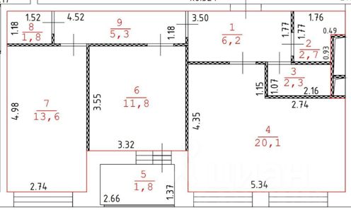
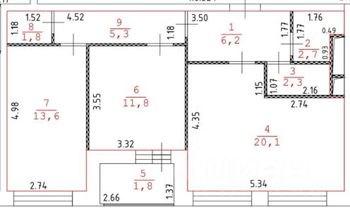
ЖК Карамельный. Прекрасная трехкомнатная квартира, расположена на 3 этаже. площадь, с учетом лоджии составляет 67,5 кв.м. Квартира свободной планировки, без отделки. Дом сдан и активно заселяется. Квартира в собственности. Развитая инфраструктура района, в доме расположен сетевой супермаркет Ярче, также в доме пункт выдачи WB, Ozon и строительный магазин. В пешей доступности дет сад, школа, торговый центр Орбита. Удобная транспортная доступность: ст. МЦД-3 ''Панки'' 12 мин. пешком, автобусная остановка в трех минутах пешком, автобусы до м. Лермонтовский проспект - 15-20 минут. Возможна рассрочка, а также обмен на меньшую площадь.