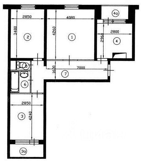
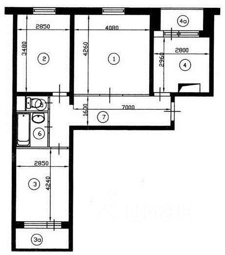
Альтернатива подобрана! Один собственник. Оперативный показ. Быстрый выход на сделку. Коротко: - Трехкомнатная квартира 64,95 кв.м. - Один собственник - Две лоджии - Раздельный санузел - Вся инфраструктура в пешей доступности Подробно: Просторная трехкомнатная квартира в тихом районе г. Люберцы. Кухня площадью 8,7кв.м. Прихожая с большим коридором. Три раздельные комнаты 12,2кв.м, 9,9кв.м и просторная гостиная 17,3кв.м. Раздельный санузел, две застекленные и утепленные лоджии. Один взрослый собственник более 10ти лет. Инфраструктура района: в пешей доступности школы, детские сады, школы, поликлиника, ТЦ, сетевые магазины, банки, почта, новые детские площадки. Транспортная доступность: до м.
Альтернатива подобрана! Один собственник. Оперативный показ. Быстрый выход на сделку. Коротко: - Трехкомнатная квартира 64,95 кв.м. - Один собственник - Две лоджии - Раздельный санузел - Вся инфраструктура в пешей доступности Подробно: Просторная трехкомнатная квартира в тихом районе г. Люберцы. Кухня площадью 8,7кв.м. Прихожая с большим коридором. Три раздельные комнаты 12,2кв.м, 9,9кв.м и просторная гостиная 17,3кв.м. Раздельный санузел, две застекленные и утепленные лоджии. Один взрослый собственник более 10ти лет. Инфраструктура района: в пешей доступности школы, детские сады, школы, поликлиника, ТЦ, сетевые магазины, банки, почта, новые детские площадки. Транспортная доступность: до м. Котельники 17мин пешком, до платформы Люберцы-1 пять остановок на автобусе. Остановка общественного транспорта в 2х минутах ходьбы. Данный объект недвижимости можно приобрести в ипотеку! Помощь в одобрении ипотеки от ведущих банков.