Если цена в объявлении изменится, мы сразу сообщим вам об этом на электронную почту.
Нажимая «Подписаться», вы соглашаетесь с правилами.
продам 3-к, Юбилейная, 46 900 000 ₽
28 сен
Дата публикации объявления
Обн. 29 ноя
Дата обновления объявления
4
Количество просмотров (+ просмотры за сегодня)
113 674 ₽/м²
Чистая продажа
Термин "Чистая продажа" означает, что в квартире никто не прописан или
есть куда выписаться и вывезти вещи. Это лучший вариант для покупателя.
Вероятность срыва сделки минимальна.
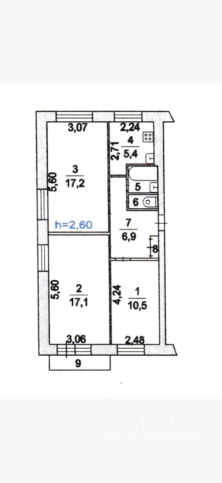
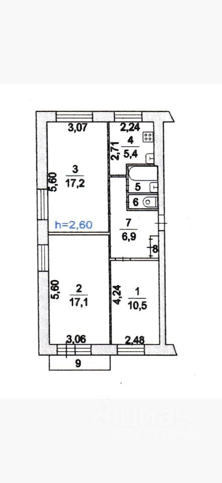
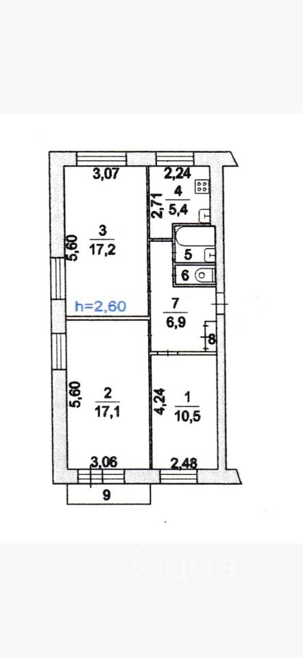
Продается уютная трехкомнатная квартира в Люберцах на Юбилейной улице, дом 4. Общая площадь квартиры составляет 60,7 кв. м, жилая площадь — 40 кв. м, а кухня — 7 кв. м. Квартира расположена на 5 этаже 5-этажного панельного дома, построенного в 1968 году. Высота потолков — 2,5 метра. Дом находится в 20 минутах пешком от станции метро ''Котельники'', что делает его удобным для тех, кто ценит транспортную доступность.
В квартире нет ремонта, что предоставляет отличную возможность для реализации ваших дизайнерских идей и создания интерьера по вашему вкусу. Планировка включает три изолированные комнаты, что идеально подходит для семьи. Есть один санузел и балкон, который добавляет дополнительное пространство для отдыха.
Дом расположен в районе с развитой инфраструктурой.
Продается уютная трехкомнатная квартира в Люберцах на Юбилейной улице, дом 4. Общая площадь квартиры составляет 60,7 кв. м, жилая площадь — 40 кв. м, а кухня — 7 кв. м. Квартира расположена на 5 этаже 5-этажного панельного дома, построенного в 1968 году. Высота потолков — 2,5 метра. Дом находится в 20 минутах пешком от станции метро ''Котельники'', что делает его удобным для тех, кто ценит транспортную доступность.
В квартире нет ремонта, что предоставляет отличную возможность для реализации ваших дизайнерских идей и создания интерьера по вашему вкусу. Планировка включает три изолированные комнаты, что идеально подходит для семьи. Есть один санузел и балкон, который добавляет дополнительное пространство для отдыха.
Дом расположен в районе с развитой инфраструктурой. В шаговой доступности находятся школы и детские сады, что особенно удобно для семей с детьми. Рядом также есть магазины, где можно приобрести все необходимое для комфортного проживания. Наземная парковка рядом с домом позволяет без проблем оставить ваш автомобиль.
Квартира продается на условиях прямой продажи. Документы готовы к сделке, обременений нет. Ипотека возможна, что делает покупку более доступной для разных категорий покупателей.
Приходите на просмотр этой замечательной квартиры! Записывайтесь, чтобы оценить все ее преимущества и почувствовать, как она может стать вашим новым домом.