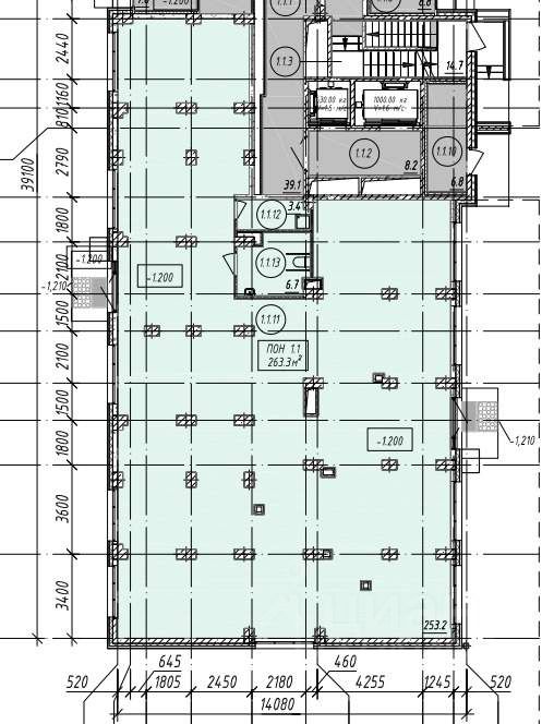
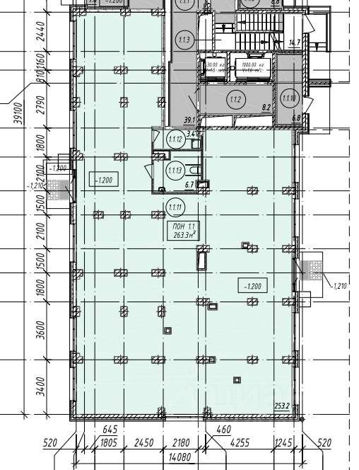
Угловое нежилое помещение 1.1, корпус 5.1, общей площадью 263,30 м2, первый этаж, 2 входа с улицы. Центральное местоположение, напротив муниципальный ДОО на 560 мест и Школа на 1500 мест. Помещение выходит на первую линию внутриквартального сквозного проезда. Есть стихийная парковка вдоль улицы. Высота потолков 4 м, выделенная мощность - 0,2кВт/ м2, предчистовая отделка. заведены точки подключения к системам вентиляции, гвс/хвс, канализации. В помещении 12 больших витринных окон, предназначено под организацию поликлиники/мед. кабинета, под помещением - тех. этаж+кладовые.
Дом вводится в эксплуатацию в 3 кв. 2024 г. ЖК сдан, заселен. Жилой комплекс расположен в 5 минутах езды от станций метро ''Некрасовка'', МЦД ст.
Помещение под МЕДЦЕНТР от ЗАСТРОЙЩИКА!
Угловое нежилое помещение 1.1, корпус 5.1, общей площадью 263,30 м2, первый этаж, 2 входа с улицы. Центральное местоположение, напротив муниципальный ДОО на 560 мест и Школа на 1500 мест. Помещение выходит на первую линию внутриквартального сквозного проезда. Есть стихийная парковка вдоль улицы. Высота потолков 4 м, выделенная мощность - 0,2кВт/ м2, предчистовая отделка. заведены точки подключения к системам вентиляции, гвс/хвс, канализации. В помещении 12 больших витринных окон, предназначено под организацию поликлиники/мед. кабинета, под помещением - тех. этаж+кладовые.
Дом вводится в эксплуатацию в 3 кв. 2024 г. ЖК сдан, заселен. Жилой комплекс расположен в 5 минутах езды от станций метро ''Некрасовка'', МЦД ст. Люберцы-1,2. Общее количеством квартир 4 700 шт. и населением более 8 000 человек.
Целевая продажа - под мед. услуги. Доступна беспроцентная рассрочка на 2 года, все подробности по телефону.