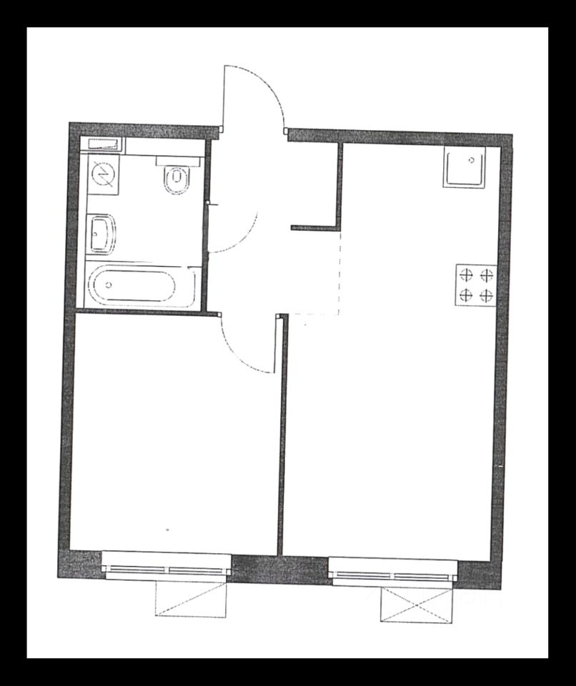
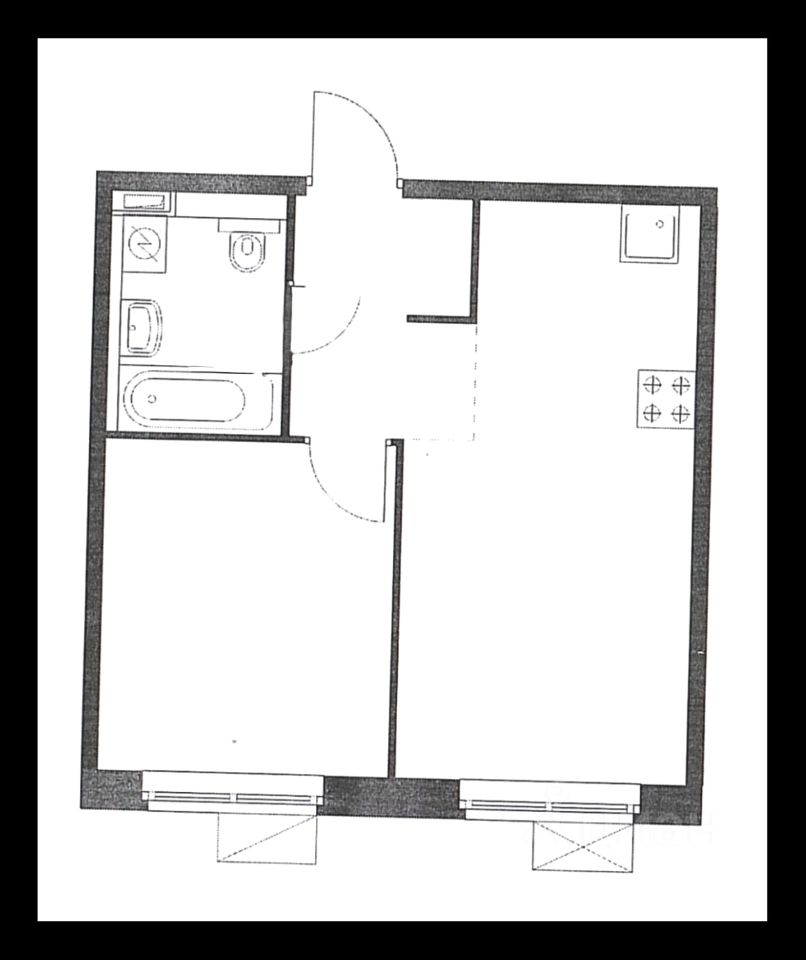
Показы с 30 октября!!!Предлагается полноценная однокомнатная квартира с отделкой , мебелью и техникой ''под ключ''. Кухня -гостиная 18 м , спальня 12 метров , СУС. Окна во двор и на восток. Комфортный 3-ий этаж . Рядом метро Котельники, 7 мин пешком, в доме есть вся инфраструктура, виды из окон представлены на фото, во внутреннем дворе- зона отдыха и детские площадки для жителей , парковка во дворе, полная сумма в договоре, выписка собственника до сделки, один взрослый собственник, АП подобрана на другой район. Показ по договоренности в удобное время.