Если цена в объявлении изменится, мы сразу сообщим вам об этом на электронную почту.
Нажимая «Подписаться», вы соглашаетесь с правилами.
продам 2-к, Льва Толстого, 17а10 500 000 ₽
12 янв
Дата публикации объявления
Обн. 14 янв
Дата обновления объявления
153 061 ₽/м²
Чистая продажа
Термин "Чистая продажа" означает, что в квартире никто не прописан или
есть куда выписаться и вывезти вещи. Это лучший вариант для покупателя.
Вероятность срыва сделки минимальна.
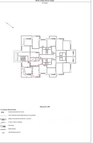
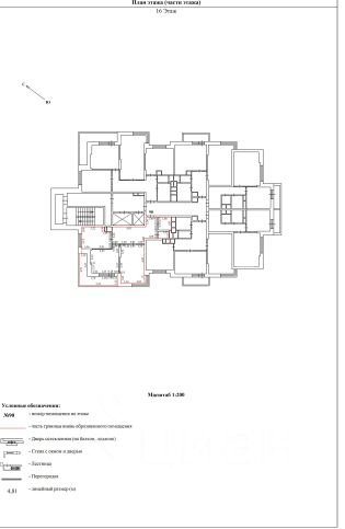
Продается двухкомнатная квартира повышенной комфортности недалеко от м. Лухмановская (13 минут пешком), Просторные комнаты 19,8 и 15,2 кв.м., кухня 10.3 кв.м., общая площадь 68,6, отличный холл,позволяющий разместить шкаф-купе или рекреационную зону , раздельный с/у. Минимум соседей ( тамбур на 5 квартир с металлической дверью) по этажу, тихие и интеллигентные соседи. Окна квартиры выходят на две стороны дома,светло и солнечно , Очень теплая квартира,качественна звуко и теплоизоляция Проведены подготовленные работы: стяжка на пол ,разведена электрика, выровнены стены,разводка воды в санузлах, Современный дом 2018г. постройки, монолитный технологии, позволяет создать себе тот образ жизни, который нужен именно Вам.
Продается двухкомнатная квартира повышенной комфортности недалеко от м. Лухмановская (13 минут пешком), Просторные комнаты 19,8 и 15,2 кв.м., кухня 10.3 кв.м., общая площадь 68,6, отличный холл,позволяющий разместить шкаф-купе или рекреационную зону , раздельный с/у. Минимум соседей ( тамбур на 5 квартир с металлической дверью) по этажу, тихие и интеллигентные соседи. Окна квартиры выходят на две стороны дома,светло и солнечно , Очень теплая квартира,качественна звуко и теплоизоляция Проведены подготовленные работы: стяжка на пол ,разведена электрика, выровнены стены,разводка воды в санузлах, Современный дом 2018г. постройки, монолитный технологии, позволяет создать себе тот образ жизни, который нужен именно Вам. По документам: ДКП, 1 взрослый собственник ( 40 лет), полная стоимость в ДКП, юр и физ свободна. Быстрый выход на сделку. Сложившийся уютный микрорайон,дом во дворе,отличная инфраструктура: все абсолютно рядом и поликлиника ,и школы,детсад ,магазины и др. Квартира для тех, кому дорог свой образ жизни и не устраивает чужой ремонт. Атмосфера '' Старого города'' никакой реновации, , неторопливый ритм жизни,зеленые дворы и милые пятиэтажки и - Москва ''под боком''