Дом сдан, три минуты пешком от метро, большая огороженная территория комплекса, безопастность и комфорт для жильцов. Магазины, школы, сады, аптеки, поликлиники в сложившемся районе.
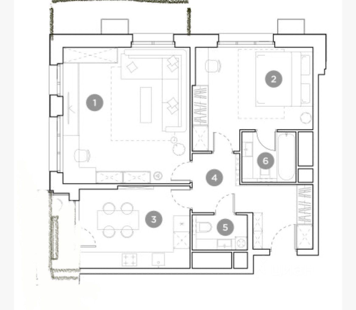
Квартира угловая, окна на запад, север, восток-солнечная, светлая.
ДОКУМЕНТЫ
- квартира покупалась у застройщика, первая продажа,
- один совершеннолетний собственник,
- Вся цена в договоре-сделка без рисков,
- материнский капитал не использовался,
- подходит под ипотеку.
Прекрасное сочетание уюта, функциональности и местоположения.
Помощь не требуется, услуги агентств не оплачиваю, есть свой юрист.













