3-к, Камова, 7 корп. 1 Показать на карте
Люберцы
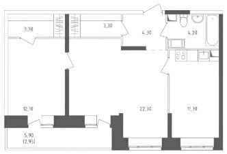
Продаётся уютная трёхкомнатная квартира площадью 65.3 квадратных метров на улице Камова, дом 7 корпус 1 в городе Люберцы. Квартира расположена на пятом этаже монолитного дома, построенного в 2021 году. В квартире произведен качественный ремонт ''для себя''. Из окон открывается прекрасный вид на тихий двор, где расположены детская и спортивная площадки.Внутри вас ждёт качественный евро ремонт, который добавляет комфорта и уюта этому жилью. Жилая площадь составляет 38.3 квадратных метра, а площадь кухни - 9.7 квадратных метров. Также имеется три лоджии, что позволяет наслаждаться свежим воздухом без необходимости выходить из дома.Для вашего удобства во дворе предусмотрена парковка. Безопасность жильцов обеспечивается наличием домофона и кодовой двери. Рядом с домом находятся все необходимые объекты инфраструктуры: школа, детский сад, торговый центр, парк и фитнес-центр.Расположение этой квартиры идеально подходит для тех, кто ценит спокойствие и природу, ведь рядом расположен живописный парк, где можно прогуляться после трудового дня или провести выходные с семьёй.Документы основания ДДУ 2019 года. Два взрослых собственника. Юридически и физически свободна. Ипотека в ПСБ банке. Долг 4.6 млн. Полная стоимость в договоре.Не упустите возможность стать владельцем этой замечательной квартиры!
65 м2
5 / 17 этаж
Монолит
- Показать контакты
- Добавить в избранное
65 м2
5 / 17 этаж
Монолит
11 900 000
182 236 /м2
