Готовый бизнес
Рождественская, 6 Показать на карте
Рождественская, 6 Показать на карте
Люберцы
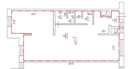
Лот 746933-Г Предложение от Собственника! Возможно использовать как арендный бизнес. Продается помещение 77.8 м2 в новом ЖК 1-й Лермонтовский (ФСК) район м.Некрасовка (5 мин транспортом). В ЖК пять 25 этажных многосекционных корпусов с населением более 8 000 человек. 1 этаж, витринные окна, потолки более 4 м. Отдельный вход. Состояние под отделку. Помещение расположено близи первой линии домов с высоким пешеходным и автомобильным трафиком. Вблизи школа и детский сад. Продажа по ДКП. Агентам просьба не звонить. Возможный профиль: Офис, Общепит, Продукты, Алкомаркет, Аптека, Оптика, Услуги, Сервис, Ремонт, Салон красоты, Парикмахерская, Барбер шоп, Ателье, Химчистка, Фото, Туры, Детский Сад, Центр, Детский Клуб, Обучение, Школа, Курсы, Творчество, Тренинги, МедЦентр, Клиника, Анализы, Стоматология, Косметология, Салон эпиляции, Массаж, Спа, Хозтовары, Для Дома, Для Ремонта, Детские, Зоотовары, Интернет магазин, ПВЗ, Доставка, Товары, Шоурум, Игрушки, Канцтовары, Подарки, Сувениры, Косметика, Бижутерия, Аксессуары, Парфюмерия, БытХимия.Чтобы получить ПОДРОБНУЮ ПРЕЗЕНТАЦИЮ С ПЛАНИРОВКОЙ И ФОТОГРАФИЯМИ, звоните или отправьте свой email и номер телефона в сообщении на портале. Высылаем в течение 15 минут по запросу! Конт. лицо: Алексей Владимирович, доб. 322, ЛОТ 746933-Г
77 м2
- Показать контакты
- Добавить в избранное
77 м2
18 260 000
234 704 /м2
